Search
- Drawing, "Panel - Cowl Side - L.H.," Ford GPW, June 21, 1944 - The Ford Motor Company created over a million parts drawings from 1903 to 1957. Many of these drawings specify engineering requirements for the components of Ford-made vehicles--including automobiles, trucks, tractors, military vehicles and Tri-motor airplanes. Others document assembly components, stages of casting and forging, or experimental designs. Beginning in the 1940s, Ford transferred the drawings to microfilm.

- June 21, 1944
- Collections - Artifact
Drawing, "Panel - Cowl Side - L.H.," Ford GPW, June 21, 1944
The Ford Motor Company created over a million parts drawings from 1903 to 1957. Many of these drawings specify engineering requirements for the components of Ford-made vehicles--including automobiles, trucks, tractors, military vehicles and Tri-motor airplanes. Others document assembly components, stages of casting and forging, or experimental designs. Beginning in the 1940s, Ford transferred the drawings to microfilm.
- Frontier Nursing Service Jeep on Mountain Road near Hospital, Wendover, Kentucky, 1945 - The Frontier Nursing Service, established by Mary Breckinridge in 1925, brought qualified nurse-midwives and modern, life-saving healthcare to parts of eastern Kentucky that were accessible only by horse. In the early 1940s, a jeep could navigate the mountainous terrain and Breckinridge asked her patrons for help. Clara Ford, a longtime benefactor, secured one. Breckinridge named the jeep "Jane," Mrs. Ford's middle name.

- 1945
- Collections - Artifact
Frontier Nursing Service Jeep on Mountain Road near Hospital, Wendover, Kentucky, 1945
The Frontier Nursing Service, established by Mary Breckinridge in 1925, brought qualified nurse-midwives and modern, life-saving healthcare to parts of eastern Kentucky that were accessible only by horse. In the early 1940s, a jeep could navigate the mountainous terrain and Breckinridge asked her patrons for help. Clara Ford, a longtime benefactor, secured one. Breckinridge named the jeep "Jane," Mrs. Ford's middle name.
- Drawing, "Seal - Tool Compartment Lid," Ford GPW, January 11, 1942 - The Ford Motor Company created over a million parts drawings from 1903 to 1957. Many of these drawings specify engineering requirements for the components of Ford-made vehicles--including automobiles, trucks, tractors, military vehicles and Tri-motor airplanes. Others document assembly components, stages of casting and forging, or experimental designs. Beginning in the 1940s, Ford transferred the drawings to microfilm.

- January 11, 1942
- Collections - Artifact
Drawing, "Seal - Tool Compartment Lid," Ford GPW, January 11, 1942
The Ford Motor Company created over a million parts drawings from 1903 to 1957. Many of these drawings specify engineering requirements for the components of Ford-made vehicles--including automobiles, trucks, tractors, military vehicles and Tri-motor airplanes. Others document assembly components, stages of casting and forging, or experimental designs. Beginning in the 1940s, Ford transferred the drawings to microfilm.
- Drawing, "Panel Ass'y. - Dash," Ford GPW, November 5, 1943 - The Ford Motor Company created over a million parts drawings from 1903 to 1957. Many of these drawings specify engineering requirements for the components of Ford-made vehicles--including automobiles, trucks, tractors, military vehicles and Tri-motor airplanes. Others document assembly components, stages of casting and forging, or experimental designs. Beginning in the 1940s, Ford transferred the drawings to microfilm.

- November 05, 1943
- Collections - Artifact
Drawing, "Panel Ass'y. - Dash," Ford GPW, November 5, 1943
The Ford Motor Company created over a million parts drawings from 1903 to 1957. Many of these drawings specify engineering requirements for the components of Ford-made vehicles--including automobiles, trucks, tractors, military vehicles and Tri-motor airplanes. Others document assembly components, stages of casting and forging, or experimental designs. Beginning in the 1940s, Ford transferred the drawings to microfilm.
- Drawing, "Spring - Front," Ford GPW, September 19, 1944 - The Ford Motor Company created over a million parts drawings from 1903 to 1957. Many of these drawings specify engineering requirements for the components of Ford-made vehicles--including automobiles, trucks, tractors, military vehicles and Tri-motor airplanes. Others document assembly components, stages of casting and forging, or experimental designs. Beginning in the 1940s, Ford transferred the drawings to microfilm.

- September 19, 1944
- Collections - Artifact
Drawing, "Spring - Front," Ford GPW, September 19, 1944
The Ford Motor Company created over a million parts drawings from 1903 to 1957. Many of these drawings specify engineering requirements for the components of Ford-made vehicles--including automobiles, trucks, tractors, military vehicles and Tri-motor airplanes. Others document assembly components, stages of casting and forging, or experimental designs. Beginning in the 1940s, Ford transferred the drawings to microfilm.
- Drawing, "Plate - Gear Shift Information," Ford GPW, March 10, 1944 - The Ford Motor Company created over a million parts drawings from 1903 to 1957. Many of these drawings specify engineering requirements for the components of Ford-made vehicles--including automobiles, trucks, tractors, military vehicles and Tri-motor airplanes. Others document assembly components, stages of casting and forging, or experimental designs. Beginning in the 1940s, Ford transferred the drawings to microfilm.

- March 10, 1944
- Collections - Artifact
Drawing, "Plate - Gear Shift Information," Ford GPW, March 10, 1944
The Ford Motor Company created over a million parts drawings from 1903 to 1957. Many of these drawings specify engineering requirements for the components of Ford-made vehicles--including automobiles, trucks, tractors, military vehicles and Tri-motor airplanes. Others document assembly components, stages of casting and forging, or experimental designs. Beginning in the 1940s, Ford transferred the drawings to microfilm.
- Drawing, "Channel - Cowl Side Panel Top Reinf.," Ford GPW, October 5, 1942 - The Ford Motor Company created over a million parts drawings from 1903 to 1957. Many of these drawings specify engineering requirements for the components of Ford-made vehicles--including automobiles, trucks, tractors, military vehicles and Tri-motor airplanes. Others document assembly components, stages of casting and forging, or experimental designs. Beginning in the 1940s, Ford transferred the drawings to microfilm.

- October 05, 1942
- Collections - Artifact
Drawing, "Channel - Cowl Side Panel Top Reinf.," Ford GPW, October 5, 1942
The Ford Motor Company created over a million parts drawings from 1903 to 1957. Many of these drawings specify engineering requirements for the components of Ford-made vehicles--including automobiles, trucks, tractors, military vehicles and Tri-motor airplanes. Others document assembly components, stages of casting and forging, or experimental designs. Beginning in the 1940s, Ford transferred the drawings to microfilm.
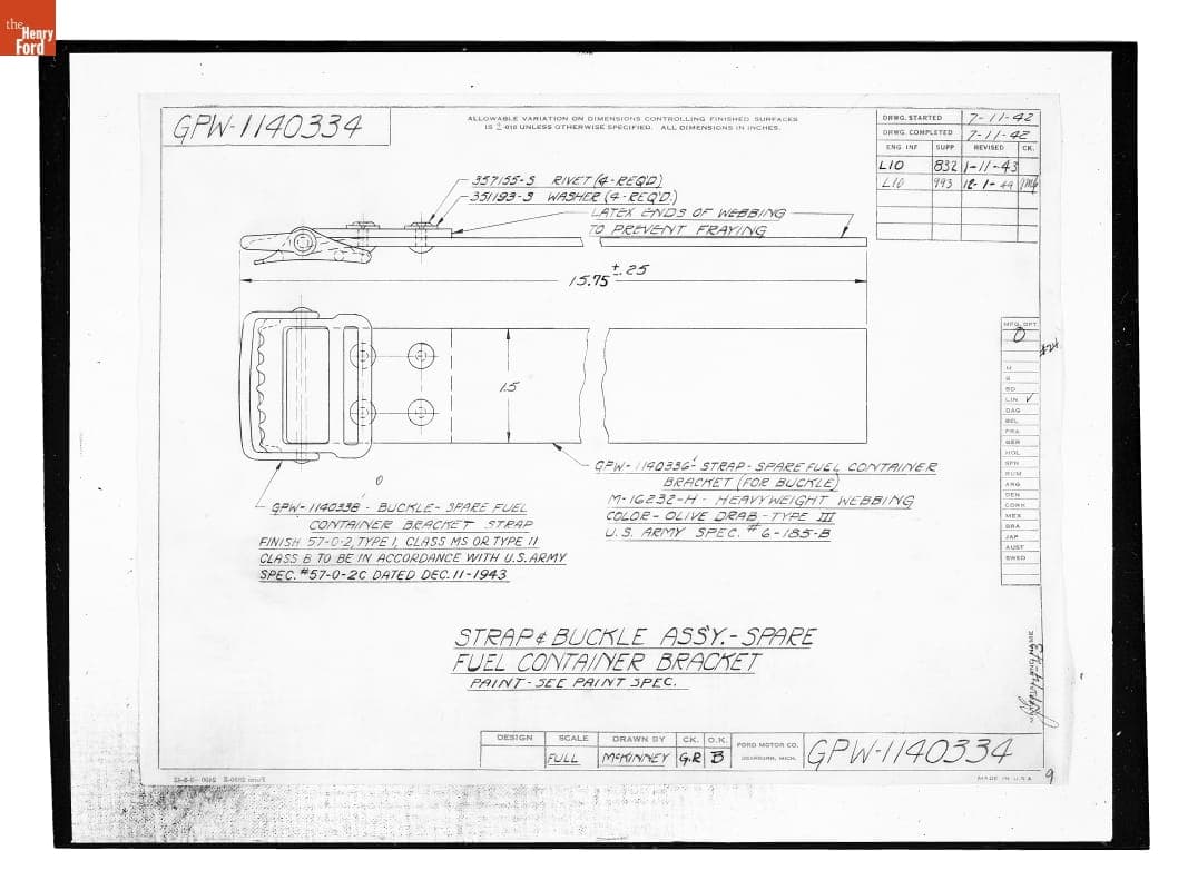
- Drawing, "Strap & Buckle Ass'y. - Spare Fuel Container Bracket," Ford GPW, December 1, 1944 - The Ford Motor Company created over a million parts drawings from 1903 to 1957. Many of these drawings specify engineering requirements for the components of Ford-made vehicles--including automobiles, trucks, tractors, military vehicles and Tri-motor airplanes. Others document assembly components, stages of casting and forging, or experimental designs. Beginning in the 1940s, Ford transferred the drawings to microfilm.

- December 01, 1944
- Collections - Artifact
Drawing, "Strap & Buckle Ass'y. - Spare Fuel Container Bracket," Ford GPW, December 1, 1944
The Ford Motor Company created over a million parts drawings from 1903 to 1957. Many of these drawings specify engineering requirements for the components of Ford-made vehicles--including automobiles, trucks, tractors, military vehicles and Tri-motor airplanes. Others document assembly components, stages of casting and forging, or experimental designs. Beginning in the 1940s, Ford transferred the drawings to microfilm.
- Drawing, "Bow - Ass'y - Top Complete/Welding Assy. Top Bow," Ford GPW, September 1942 - The Ford Motor Company created over a million parts drawings from 1903 to 1957. Many of these drawings specify engineering requirements for the components of Ford-made vehicles--including automobiles, trucks, tractors, military vehicles and Tri-motor airplanes. Others document assembly components, stages of casting and forging, or experimental designs. Beginning in the 1940s, Ford transferred the drawings to microfilm.

- September 01, 1942
- Collections - Artifact
Drawing, "Bow - Ass'y - Top Complete/Welding Assy. Top Bow," Ford GPW, September 1942
The Ford Motor Company created over a million parts drawings from 1903 to 1957. Many of these drawings specify engineering requirements for the components of Ford-made vehicles--including automobiles, trucks, tractors, military vehicles and Tri-motor airplanes. Others document assembly components, stages of casting and forging, or experimental designs. Beginning in the 1940s, Ford transferred the drawings to microfilm.
- Drawing, "Pivot - Front Top Bow Tube," Ford GPW, November 14, 1941 - The Ford Motor Company created over a million parts drawings from 1903 to 1957. Many of these drawings specify engineering requirements for the components of Ford-made vehicles--including automobiles, trucks, tractors, military vehicles and Tri-motor airplanes. Others document assembly components, stages of casting and forging, or experimental designs. Beginning in the 1940s, Ford transferred the drawings to microfilm.

- November 14, 1941
- Collections - Artifact
Drawing, "Pivot - Front Top Bow Tube," Ford GPW, November 14, 1941
The Ford Motor Company created over a million parts drawings from 1903 to 1957. Many of these drawings specify engineering requirements for the components of Ford-made vehicles--including automobiles, trucks, tractors, military vehicles and Tri-motor airplanes. Others document assembly components, stages of casting and forging, or experimental designs. Beginning in the 1940s, Ford transferred the drawings to microfilm.