Search
- Watt Canal Pumping Engine in Henry Ford Museum, April 1938 - Boulton and Watt built this engine for the Warwick and Birmingham Canal Navigation Company in 1796. It was used at the Bowyer Street pumping station in Birmingham, England, to pump water on the Bordesley Canal until 1854, when it was superseded by a more modern engine. The engine remained in the pumping station until coming to The Henry Ford in 1929.

- April 06, 1938
- Collections - Artifact
Watt Canal Pumping Engine in Henry Ford Museum, April 1938
Boulton and Watt built this engine for the Warwick and Birmingham Canal Navigation Company in 1796. It was used at the Bowyer Street pumping station in Birmingham, England, to pump water on the Bordesley Canal until 1854, when it was superseded by a more modern engine. The engine remained in the pumping station until coming to The Henry Ford in 1929.
- Appleton Manufacturing Company Illustrated Catalogue of Farm Implements, 1905 -

- 1905
- Collections - Artifact
Appleton Manufacturing Company Illustrated Catalogue of Farm Implements, 1905
- Model of a Duplex Pump -

- Collections - Artifact
Model of a Duplex Pump
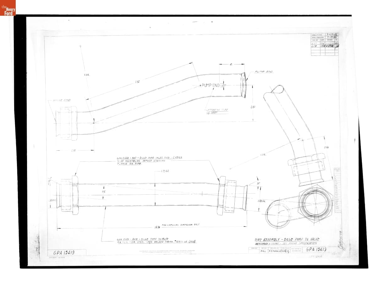
- Drawing, "Pipe Assembly - Bilge Pump to Valve," Ford GPA, December 22, 1942 - The Ford Motor Company created over a million parts drawings from 1903 to 1957. Many of these drawings specify engineering requirements for the components of Ford-made vehicles--including automobiles, trucks, tractors, military vehicles and Tri-motor airplanes. Others document assembly components, stages of casting and forging, or experimental designs. Beginning in the 1940s, Ford transferred the drawings to microfilm.

- December 22, 1942
- Collections - Artifact
Drawing, "Pipe Assembly - Bilge Pump to Valve," Ford GPA, December 22, 1942
The Ford Motor Company created over a million parts drawings from 1903 to 1957. Many of these drawings specify engineering requirements for the components of Ford-made vehicles--including automobiles, trucks, tractors, military vehicles and Tri-motor airplanes. Others document assembly components, stages of casting and forging, or experimental designs. Beginning in the 1940s, Ford transferred the drawings to microfilm.
- Moira Engine, 1821 -

- 1821
- Collections - Artifact
Moira Engine, 1821
- Trade Card for Wholesale Mill Supplies, Lansing Iron and Engine Works, 1885-1890 - In the last third of the nineteenth century, an unprecedented variety of consumer goods and services flooded the American market. Advertisers, armed with new methods of color printing, bombarded potential customers with trade cards. Americans enjoyed and often saved the vibrant little advertisements found in product packages or distributed by local merchants. Many survive as historical records of commercialism in the United States.

- 1885-1890
- Collections - Artifact
Trade Card for Wholesale Mill Supplies, Lansing Iron and Engine Works, 1885-1890
In the last third of the nineteenth century, an unprecedented variety of consumer goods and services flooded the American market. Advertisers, armed with new methods of color printing, bombarded potential customers with trade cards. Americans enjoyed and often saved the vibrant little advertisements found in product packages or distributed by local merchants. Many survive as historical records of commercialism in the United States.
- Blueprint Drawing of the 1821 Moira Engine, 1928 -

- 1928
- Collections - Artifact
Blueprint Drawing of the 1821 Moira Engine, 1928
- Cycloidal Engine, circa 1805 - Inventors tried a variety of different designs for steam engines after James Watt's patents expired in 1800. The builders of this engine developed a clever system of gears to turn the engine's up and down motion into the rotary motion. The complex planetary or cycloidal gearing eliminated the great beam used by Watt and others, and produced a compact engine.

- circa 1805
- Collections - Artifact
Cycloidal Engine, circa 1805
Inventors tried a variety of different designs for steam engines after James Watt's patents expired in 1800. The builders of this engine developed a clever system of gears to turn the engine's up and down motion into the rotary motion. The complex planetary or cycloidal gearing eliminated the great beam used by Watt and others, and produced a compact engine.
- Clinton Manufacturing Co. Dandy Barrel Pump, 1901-1920 - Farmers, distillers, and merchants used pumps like this one to dispense vinegar, cider, whiskey, syrups, oils, and other liquids from large wooden barrels into smaller containers. The manufacturer of this "dandy" device supplied instruction on how to use and clean the pump on the blue, adhered label.

- 1901-1920
- Collections - Artifact
Clinton Manufacturing Co. Dandy Barrel Pump, 1901-1920
Farmers, distillers, and merchants used pumps like this one to dispense vinegar, cider, whiskey, syrups, oils, and other liquids from large wooden barrels into smaller containers. The manufacturer of this "dandy" device supplied instruction on how to use and clean the pump on the blue, adhered label.
- Air Pump with Motor -

- Collections - Artifact
Air Pump with Motor