Henry Ford Museum of American Innovation, Ford Rouge Factory Tour and Giant Screen Experience will be closed Monday, March 16, for a day of staff learning and development. We appreciate your patience and understanding.

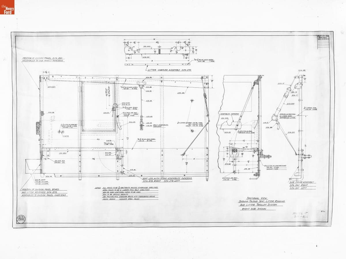
Drawing, "Sectional View Showing Folding Seat, Litter Rigging and Litter Trolley System Right Side Shown," Ford Model T Ambulance, December 3, 1918

01

Artifact Overview

The Ford Motor Company created over a million parts drawings from 1903 to 1957. Many of these drawings specify engineering requirements for the components of Ford-made vehicles--including automobiles, trucks, tractors, military vehicles and Tri-motor airplanes. Others document assembly components, stages of casting and forging, or experimental designs. Beginning in the 1940s, Ford transferred the drawings to microfilm.

Artifact Details

Artifact

Technical drawing

Subject Date

03 December 1918

Location

By Request in the Benson Ford Research Center

Object ID

86.1.1701.SFA.266.12031918

Credit

From the Collections of The Henry Ford. Gift of Ford Motor Company.

Color

Black-and-white (Colors)

Dimensions

Height: 70 mm
Width: 95 mm

Drawing, "Sectional View Showing Folding Seat, Litter Rigging and Litter Trolley System Right Side Shown," Ford Model T Ambulance, December 3, 1918